技术·参数

金属密封蝶阀(DS43R)

发布:2021-11-05 15:52 阅读:5232 次 【 字体:

产品标准: JB/T8527

公称压力: PN0.25-1.6MPa

公称通径: DN200 -3000mm

适用温度:≤ 80 ℃

密封副材料:不锈钢 - 不锈钢

压力试验: GB/T13927 双向密封

该阀门采用双偏心结构,性能可靠,启闭时密封面摩擦力小,启闭力矩小,减少密封面磨损,使用寿命长。密封副经特殊加工,硬度高,耐腐蚀,耐磨损,寿命长,密封可靠。

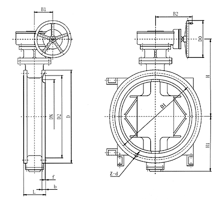
主要外形尺寸、连接尺寸和质量

本文网址:https://lntldwfm.com/news/302.html
版权所有:铁岭大沃阀门(集团)有限公司
辽ICP备2021010740号
网站建设:大友科技